Mensa Realschule MWK, Wermelskirchen, 2009
Wettbewerb 1. Preis
Bauherr : Amt für Gebäudewirtschaft Wermelskirchen
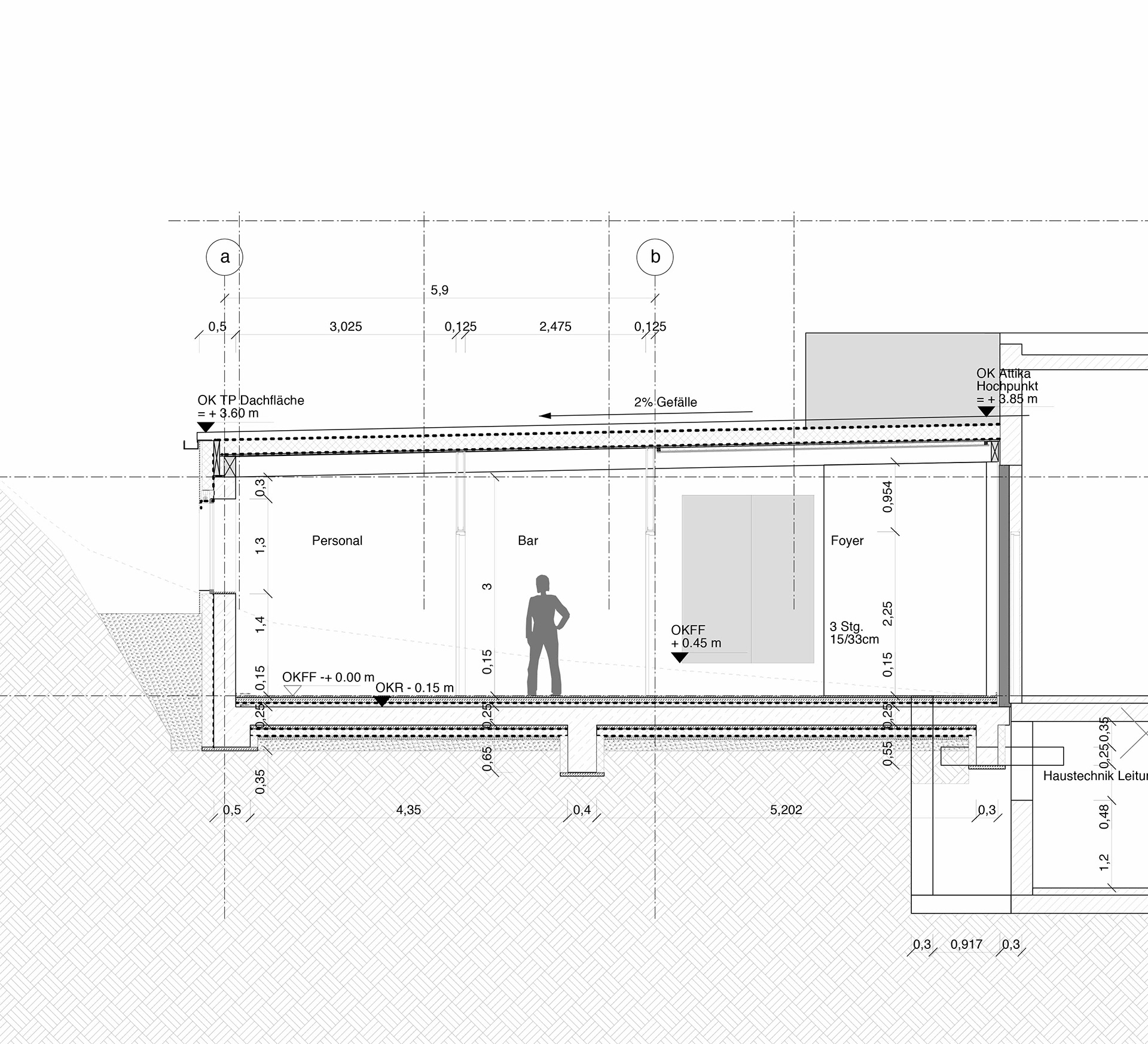
Der Neubau wird somit in Hanglage direkt neben der Aula des bestehenden Gebäudes angeordnet. Durch die direkte Anbindung des Neubaus an den Bestand ergeben sich funktional sinnvolle Synergieeffekte. Die gewünschte Mehrfachnutzung als Pausenschülertheke, Theaterbar, Mensa und Vortragsraum wird so inkl. der dafür notwendigen Technik im Neubau umgesetzt. Die Fassadengestaltung und die Aufteilung der Fensterflächen entwickeln sich konsequent aus der Nutzung der dahinterliegenden Räume. Die Nebenräume werden hangseitig angeordnet. Durch das Eingraben des Gebäudes und den gewählten rohen Materialien wie Schiefer, Sichtbeton, Sichtestrich und dem Einsatz einer sichtbaren Holzbalkendecke wird sich der Besucher des Raums der Hanglage auch im Innenraum bewusst.
BGF: 350 qm
Leistungsphase: 1 - 5

Weitere Projekte

nach oben